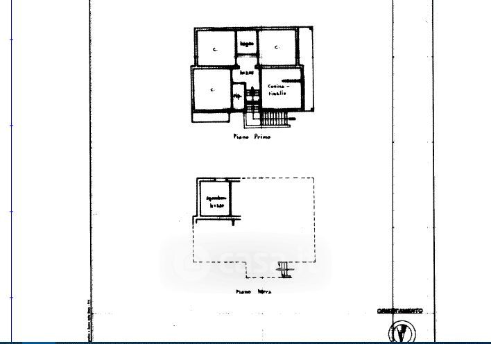
Appartamento in vendita Via della Stazione , Rapolano Terme
Salva
Casa.it
1/13
  • Street View
  • Map