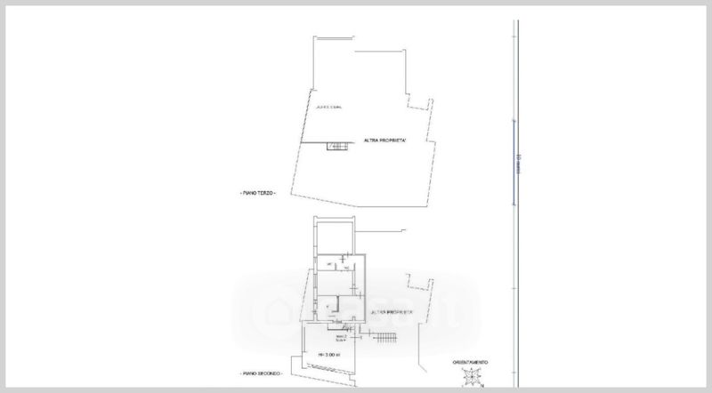
Appartamento in vendita Via dell'Unità d'Italia , Reggello
Salva
Casa.it
1/32
  • Street View
  • Map