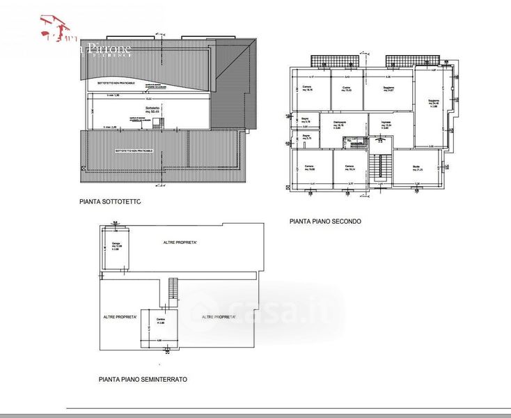
Appartamento in vendita Via Giovanni XXIII 1, Rignano sull'Arno
Salva
Casa.it
1/23
  • Street View
  • Map