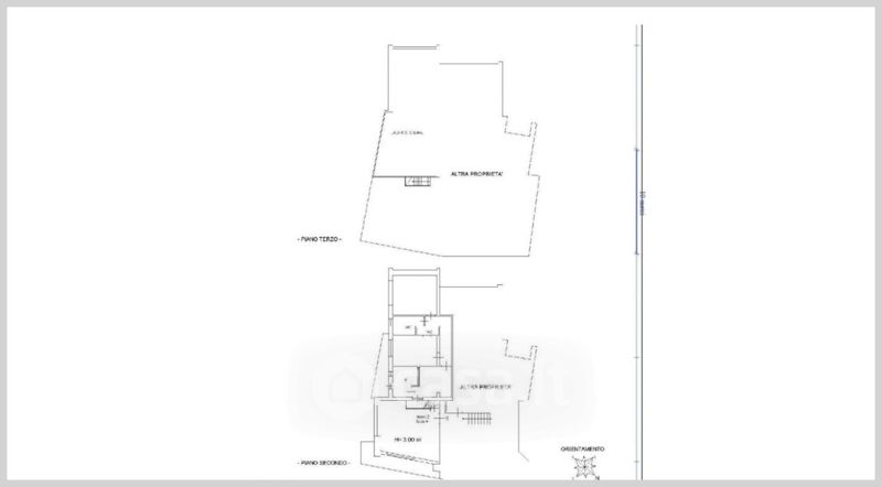
Appartamento in vendita Via Salvador Allende , Rufina
Salva
Casa.it
1/39
  • Street View
  • Map