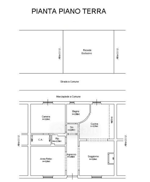
Appartamento in vendita Via Spartaco Lavagnini , San Giovanni Valdarno
Salva
Casa.it
1/21
  • Street View
  • Map