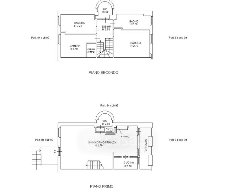
Appartamento in vendita Via Raffaello Sanzio Agnano 14, San Giuliano Terme
Salva
Casa.it
1/43
  • Street View
  • Map