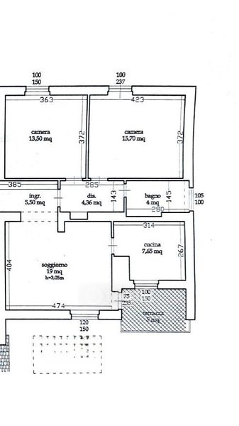
Appartamento in vendita Via Giacomo Matteotti , San Marcello Piteglio
Salva
Casa.it
1/35
  • Street View
  • Map