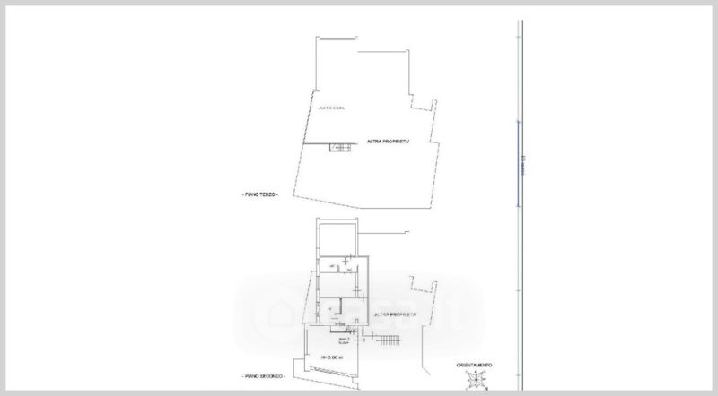
Appartamento in vendita Piazza Stellato Spalletti , San Miniato
Salva
Casa.it
1/32
  • Street View
  • Map