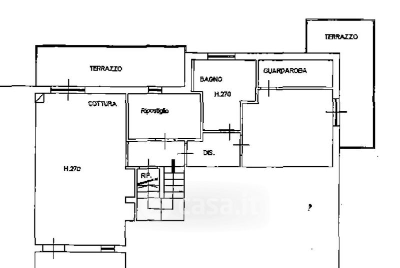
Appartamento in vendita Via Pasquale Villari 56028, San Miniato
Salva
Casa.it
1/49
  • Street View
  • Map