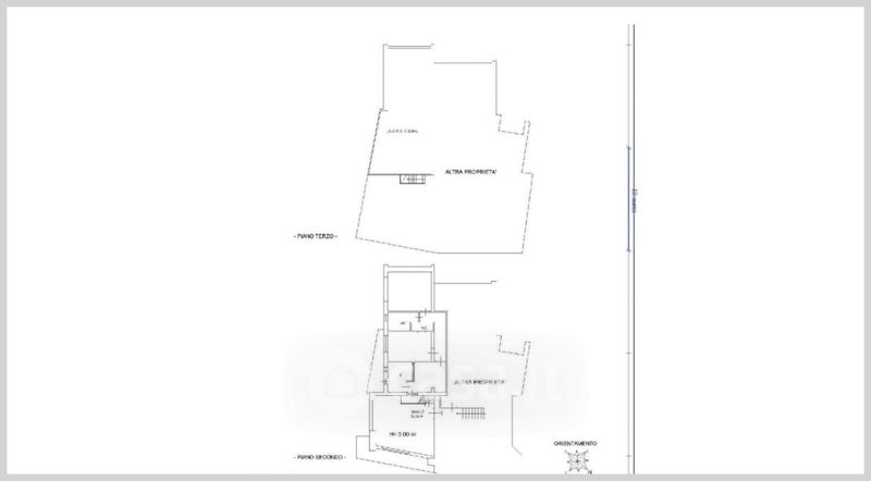
Appartamento in vendita Vicolo del Forno , Santa Croce sull'Arno
Salva
Casa.it
1/37
  • Street View
  • Map