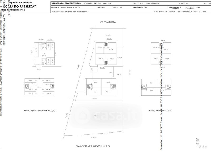
Appartamento in vendita Via Francesca Sud , Santa Maria a Monte
Salva
Casa.it
1/39
  • Street View
  • Map