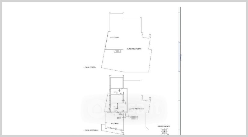
Appartamento in vendita Via Francesca , Santa Maria a Monte
Salva
Casa.it
1/32
  • Street View
  • Map