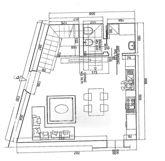
Appartamento in vendita Via della Pieve , Scandicci
Salva
Casa.it
1/25
  • Street View
  • Map