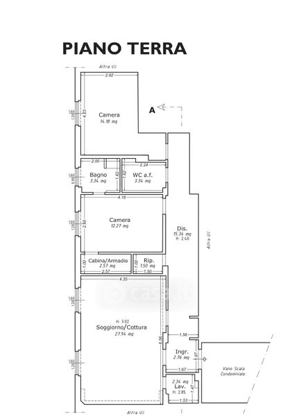
Appartamento in vendita Via del Ponte a Greve 34, Scandicci
Salva
Casa.it
1/44
  • Street View
  • Map