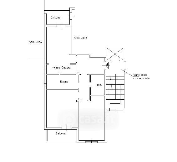
Appartamento in vendita Via Ugo Foscolo , Scandicci
Salva
Casa.it
1/17
  • Street View
  • Map