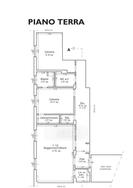
Appartamento in vendita Via del Ponte a Greve 49, Scandicci
Salva
Casa.it
1/45
  • Street View
  • Map