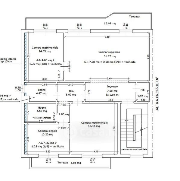
Appartamento in vendita Via Cesare Beccaria , Sesto Fiorentino
Salva
Casa.it
1/29
  • Street View
  • Map