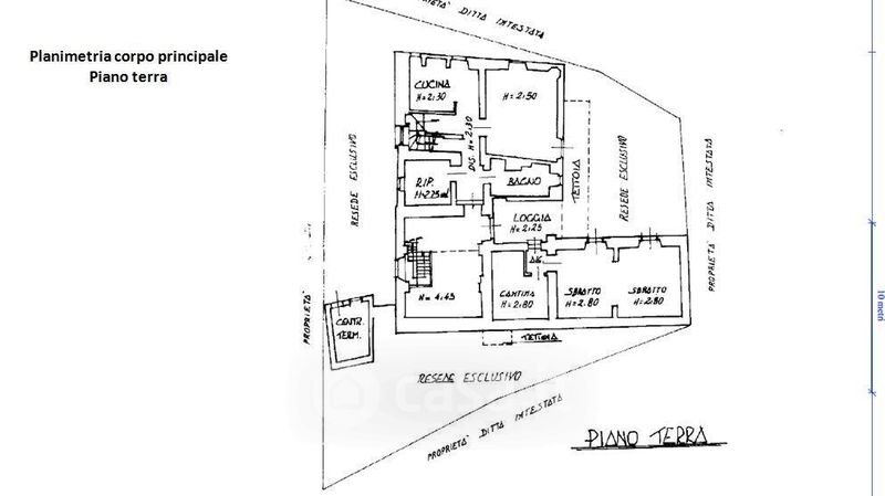
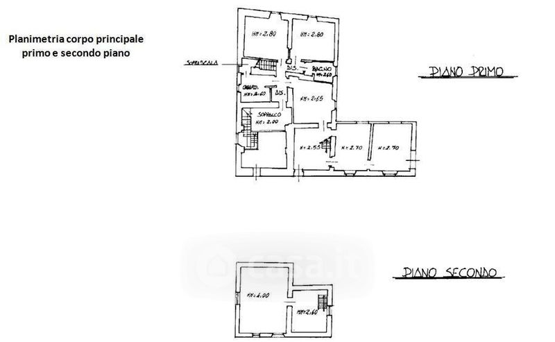
Appartamento in vendita Via Vecchia di Cercina , Sesto Fiorentino
Salva
Casa.it
1/55
  • Street View
  • Map