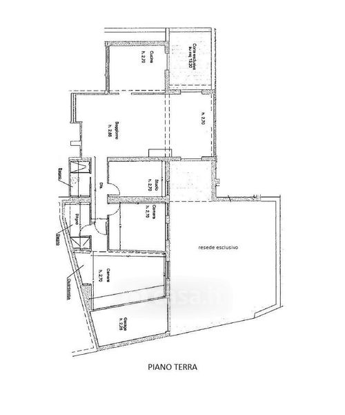
Appartamento in vendita Strada Terrensano e Belcaro , Siena
Salva
Casa.it
1/7
  • Street View
  • Map