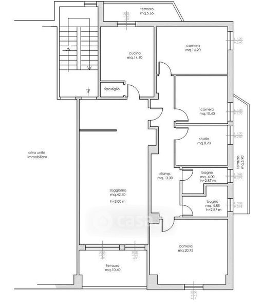
Appartamento in vendita Via Giuseppe Pietri , Siena
Salva
Casa.it
1/25
  • Street View
  • Map