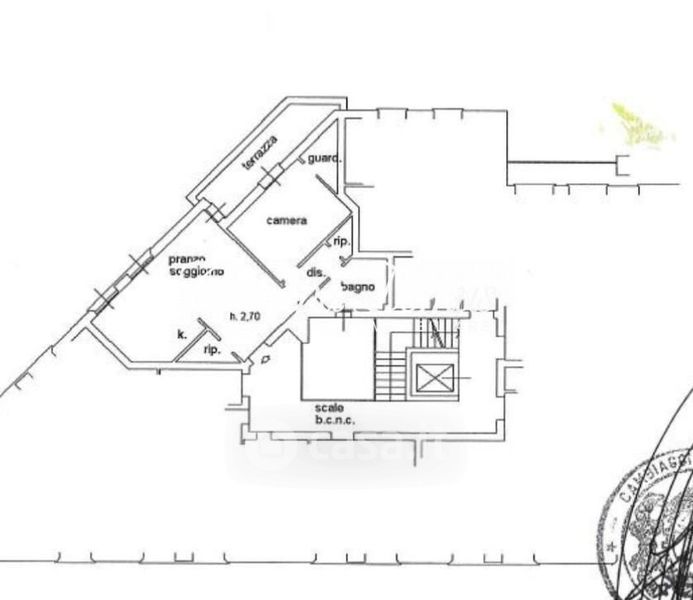
Appartamento in vendita Via Duccio di Boninsegna 70, Siena
Salva
Casa.it
1/13
  • Street View
  • Map