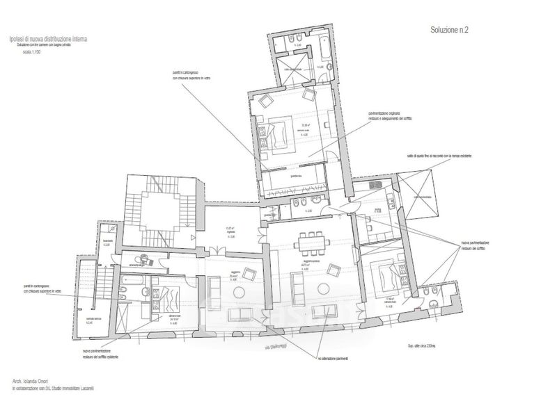
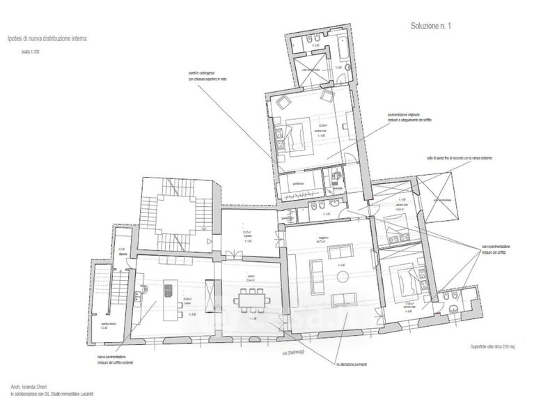
Appartamento in vendita Via Stalloreggi 28, Siena
Salva
Casa.it
1/60
  • Street View
  • Map