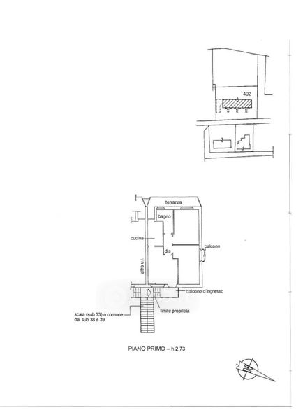
Appartamento in vendita Via del Pontaccio 30, Sovicille
Salva
Casa.it
1/38
  • Street View
  • Map