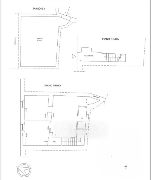
Appartamento in vendita Piazza San Pietro , Trequanda
Salva
Casa.it
1/21
  • Street View
  • Map