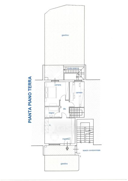
Appartamento in vendita Via Pratallame 4, Vaiano
Salva
Casa.it
1/30
  • Street View
  • Map