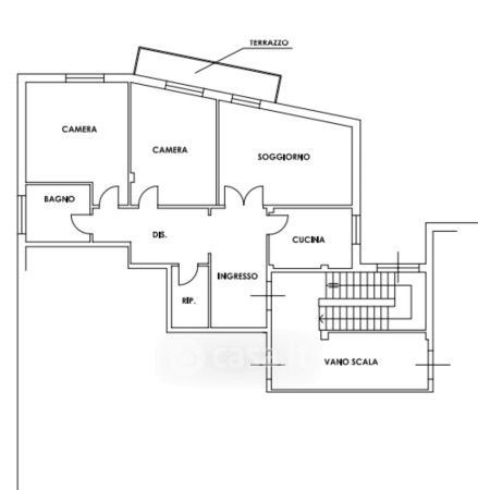
Appartamento in vendita Via dei Martiri , Villafranca in Lunigiana
Salva
Casa.it
1/18
  • Street View
  • Map