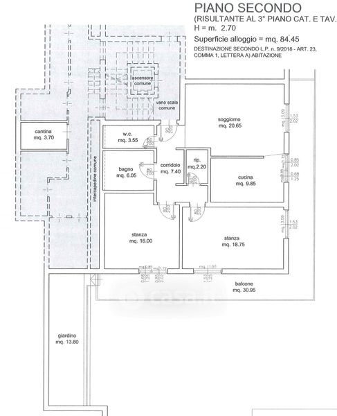
Appartamento in vendita Via Castel Flavon , Bolzano
Salva
Casa.it
1/25
  • Street View
  • Map