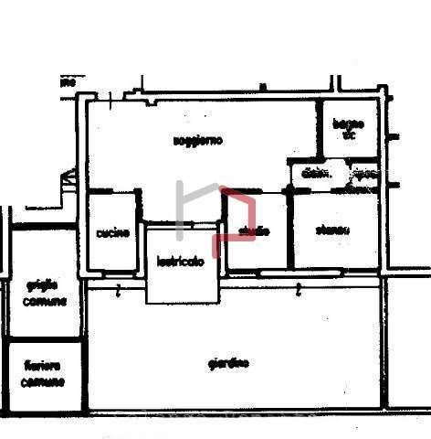
Appartamento in vendita Viale Giacomo Puccini , Bolzano
Salva
Casa.it
1/18
  • Street View
  • Map