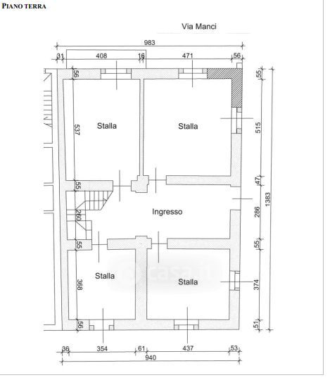
Appartamento in vendita Via Manci , Pinzolo
Salva
Casa.it
1/38
  • Street View
  • Map