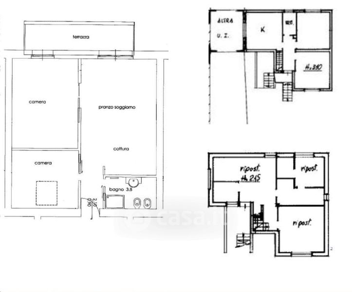
Appartamento in vendita Viale Dolomiti di Brenta 124, Pinzolo
Salva
Casa.it
1/31
  • Street View
  • Map