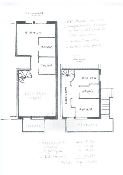
Appartamento in vendita Via Pez Gaiart 64, Primiero San Martino di Castrozza
Salva
Casa.it
1/29
  • Street View
  • Map