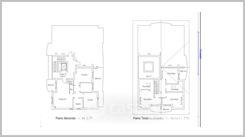
Appartamento in vendita Via Francesco Pasanisi , Assisi
Salva
Contatta l'inserzionista
Casa.it