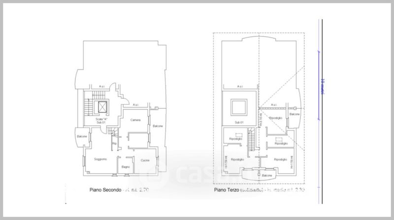
Appartamento in vendita Via Ettore Maiorana , Bastia Umbra
Salva
Casa.it
1/37
  • Street View
  • Map