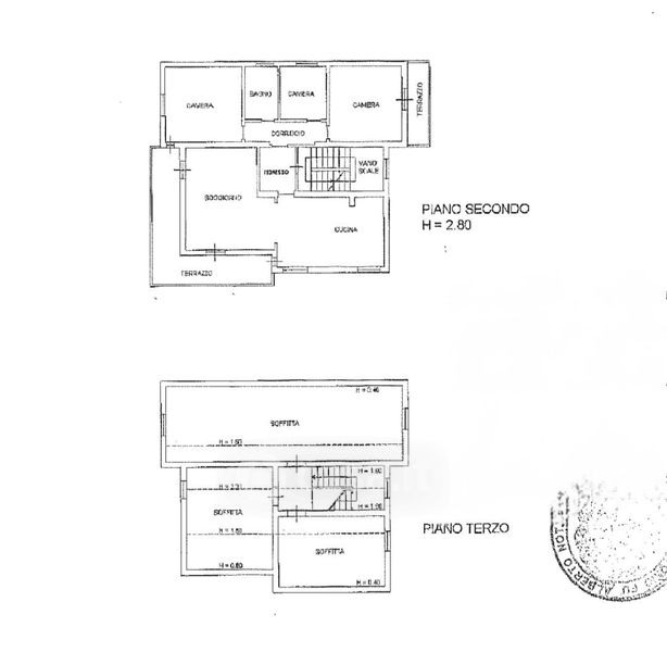
Appartamento in vendita Via A. Costa 47, Bastia Umbra
Salva
Casa.it
1/23
  • Street View
  • Map