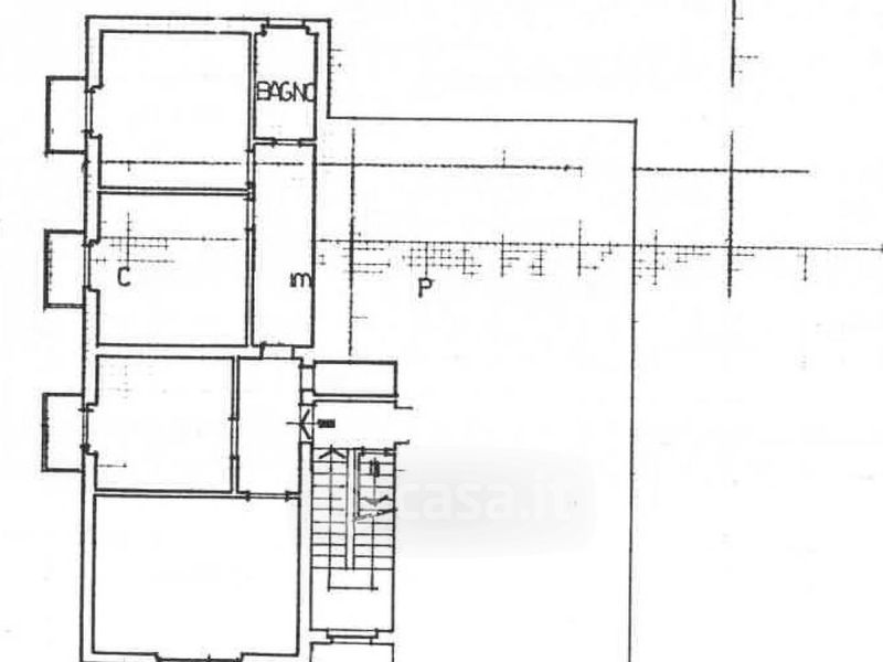
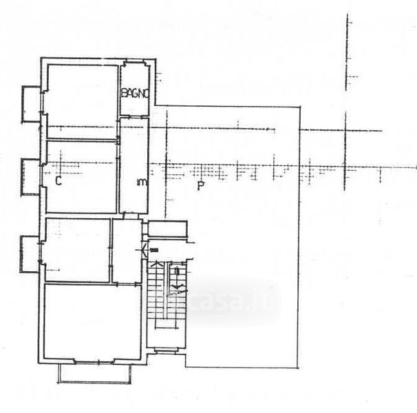
Appartamento in vendita Via Sardegna 21, Città della Pieve
Salva
Casa.it
1/23
  • Street View
  • Map