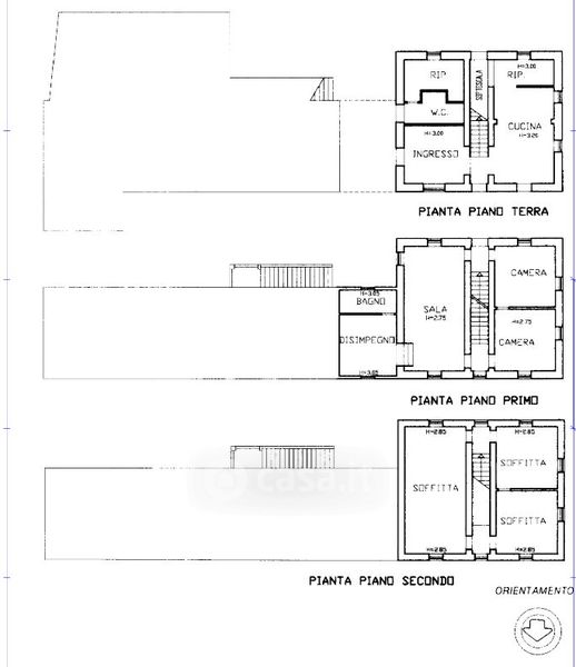
Appartamento in vendita Via Toscana , Città di Castello
Salva
Casa.it
1/37
  • Street View
  • Map