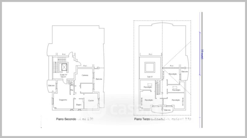
Appartamento in vendita Via San Martino , Foligno
Salva
Casa.it
1/37
  • Street View
  • Map