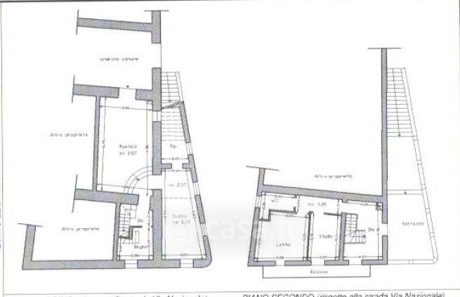
Appartamento in vendita Strada Statale 77 della Val di Chienti , Foligno
Salva
Casa.it
1/33
  • Street View
  • Map