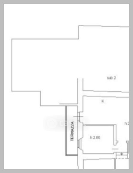
Appartamento in vendita Via Marche , Foligno
Salva
Contatta l'inserzionista
Casa.it