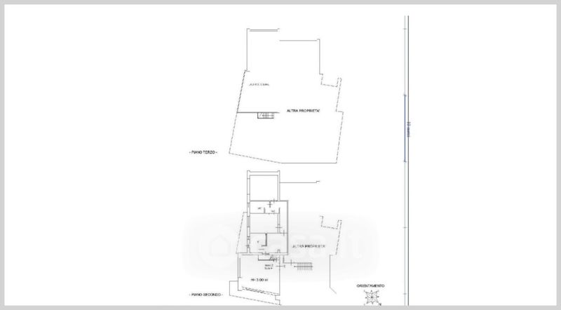
Appartamento in vendita Via Santo Marzio , Gualdo Tadino
Salva
Casa.it
1/32
  • Street View
  • Map