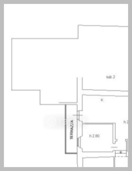
Appartamento in vendita Via Aldo Moro , Gualdo Tadino
Salva
Contatta l'inserzionista
Casa.it