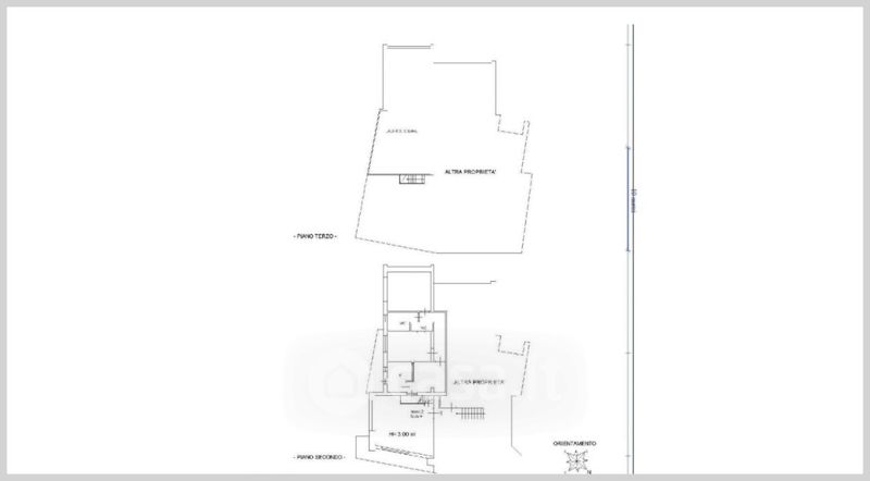
Appartamento in vendita Via Ilaria Alpi , Lugnano in Teverina
Salva
Casa.it
1/37
  • Street View
  • Map