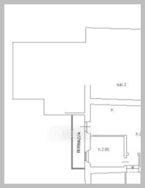
Appartamento in vendita Piazza Polimanti , Marsciano
Salva
Casa.it
1/37
  • Street View
  • Map