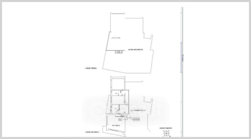
Appartamento in vendita Via Roma , Marsciano
Salva
Casa.it
1/39
  • Street View
  • Map