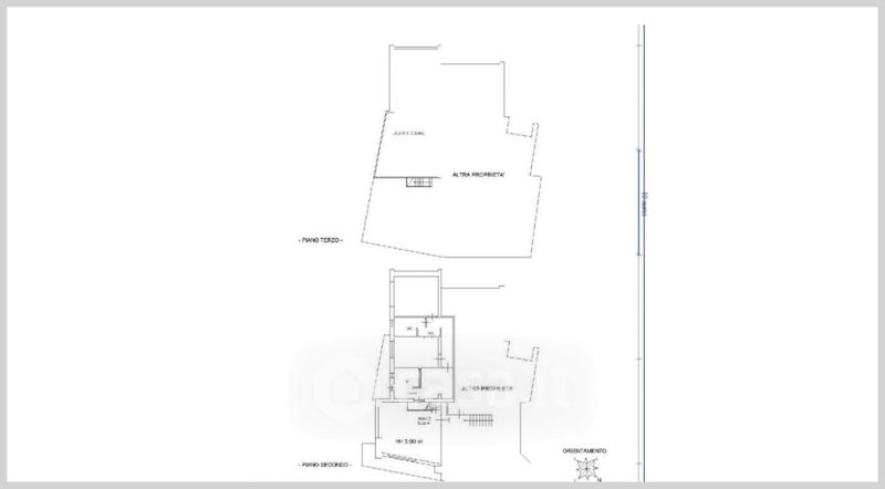
Appartamento in vendita Via Cesare Battisti , Marsciano
Salva
Casa.it
1/32
  • Street View
  • Map