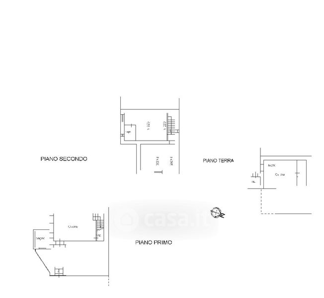
Appartamento in vendita Via Schiasciarelle , Montecchio
Salva
Casa.it
1/22
  • Street View
  • Map