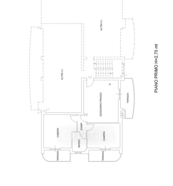
Appartamento in vendita Vocabolo Palombaro del Cieco , Panicale
Salva
Casa.it
1/15
  • Street View
  • Map