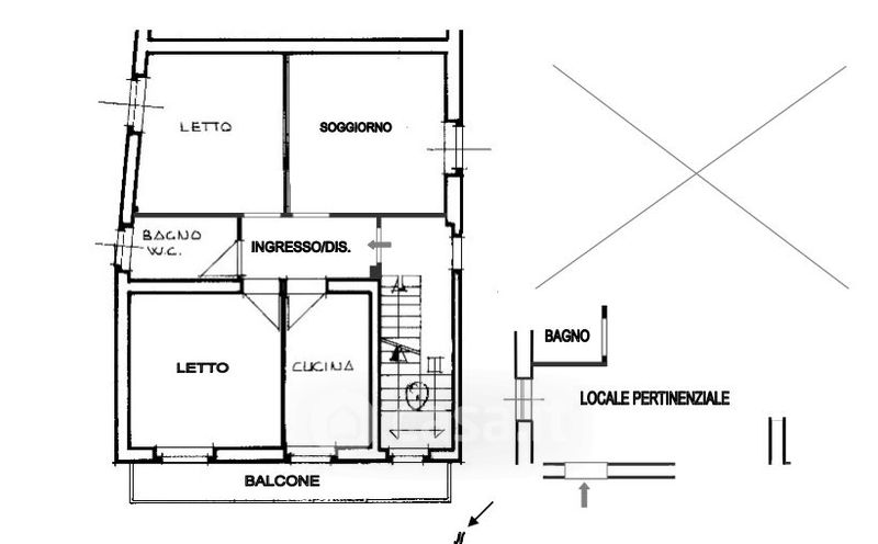
Appartamento in vendita Via del Lago , Panicale
Salva
Casa.it
1/32
  • Street View
  • Map