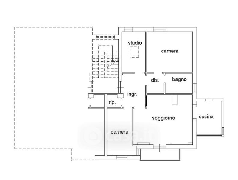
Appartamento in vendita Via della Caina 25, Perugia
Salva
Casa.it
1/27
  • Street View
  • Map