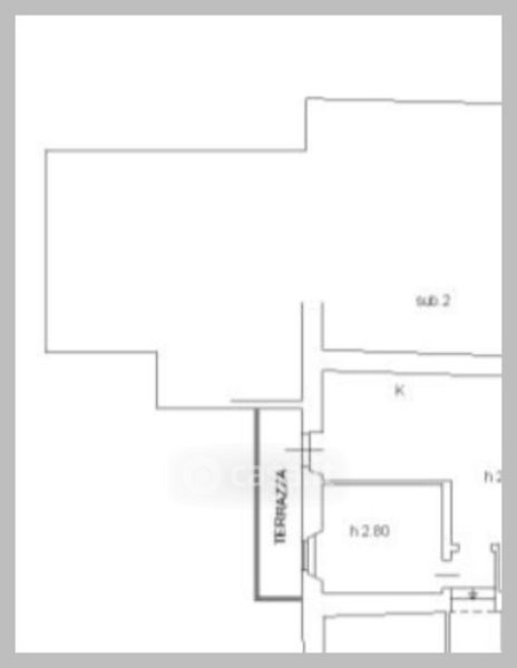
Appartamento in vendita Via Maria Bonaparte Valentini , Perugia
Salva
Casa.it
1/37
  • Street View
  • Map